114582 Оферти3750 Агенции26797 Потребители

Продава Къща Sani, Halkidiki 510000 EUR

РубрикаПродава
Вид на имотаКъща
Населено мястоSani, Halkidiki
ДържаваGreece - GR
Цена / Валута
510000 EUR
Площ
Етажност2
Гараж+
Описание:

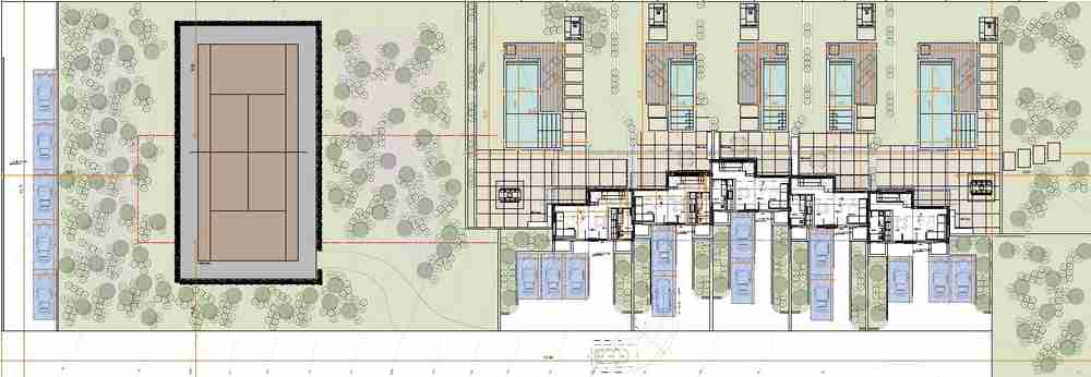
Ексклузивен нов комплекс от пет луксозни вили, разположени в Сани , една от най-престижните крайбрежни дестинации на Гърция. Разположен в рамките на внимателно планиран частен комплекс, комплексът се отличава със съвременна архитектура, първокласни строителни стандарти и споделени удобства, включително общ тенис корт. Всяка вила предлага 110 кв.м. изискана жилищна площ на три нива, допълнена от частен плувен басейн и обособен паркинг. Проектиран за взискателни международни купувачи, търсещи както качествен начин на живот, така и дългосрочна стойност, този проект представлява рядка възможност за придобиване на луксозен имот на пазар, характеризиращ се със силно търсене и ограничено ново предлагане. Цени: 535 000 евро на жилище за две ъглови вили 510 000 евро на жилище за три средни вили
Номер на офертата1027908
Дата на посл. промянаThu Mar 26 2026
Брой посетители18
За контакти: Фирма: REBUILDING CAPITAL
Държава: Greece
Населено място: Thessloniki
Адрес: Smyrnis
Телефони за контакт: +306980006436
E-mail: sales@rebuildingcapital.com

https://